|
|
 |
外 房 線
大 網 駅
バス約 7 分
停歩約 4 分 |
|
住 宅 |
|
2,380万円 |
◎日当たり良好!
◎駐車スペース2台分! |
★積水ハウス施工住宅!! ★内外装リフォーム済み!!
|
| 物件種別 |
中古住宅 |
都市計画 |
市街化区域 |
| 最適用途 |
住宅 |
用途地域 |
第一種低層住居専用地域 |
| 価 格 |
2380万円 |
建ぺい率 |
50% |
| 所 在 地 |
大網白里市みどりが丘 |
容 積 率 |
100% |
| 交 通 |
外房線 大網駅 バス約7分 停歩約4分 |
土地権利 |
所有権 |
| 土地面積 |
193.92u(約58.66坪) |
地 目 |
宅地 |
| 建物面積 |
132.04u(約39.94坪) |
接 道 |
南東約6m道路 |
| 築年月日 |
平成12年5月築 |
設 備 |
東京電力・都市ガス |
| 間 取 り |
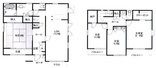
4LDK |
〃 |
公営水道・本下水 |
| 現 況 |
空家 |
取引態様 |
媒介 |
| 引 渡 し |
即可 |
|
|
| その他の制限 |
|
| 備 考 |
○掲載途中に売却済・売止め・価格変更となる場合がございます。
○上記情報と現況が異なる場合は現況を優先致します。
|
| お問合せ |
田舎暮らしバンザイ事務局 043−223−7950 |
|
現 地 写 真 |
|
|
|
|
|

物 件
|
|

日当たり良好です。
|
|
|

前面道路
|
|

駐車スペースは2台分です!
|
|
| |

積水ハウス施工住宅!
|
|

内外装リフォーム済!
|
|
| |

お庭もそこそこあります。
|
|

外装と屋根も塗装済み!
|
|
| |

全居室が南向きです。
|
|

玄関
|
|

| 間 取 図 【図面と現況が異なる場合は現況を優先致します】 |
|

| 配 置 図 【図面と現況が異なる場合は現況を優先致します】 |
|
|